
地块区位条件
项目雄踞成都成华区东二环核心地段(多宝寺南路),坐享成熟城市资源。交通极为便利,紧邻地铁4号线、7号线(槐树店站/万年场站)及BRT、城市主干道(二环高架、成洛大道),通达全城。商圈配套完善,与万象城高端商圈直线距离仅约1.2公里,商业、医疗(华西第二医院锦江院区)、教育(成师附小等)资源丰沛。生态资源突出,拥有一线临沙河的稀缺滨水景观,且被沙河公园、塔子山公园等五大公园环抱,兼具繁华与静谧,占据主城优质改善型人居高地。
基于项目“主城核心区位+稀缺滨水生态”的核心价值,旨在打造“隐于繁华的河屿谧境”——成都主城二环内兼具都市便捷性与自然疗愈感的高端低密水岸住区。

规划条件
用地呈长条形,南北向约196.9M,东西向约60.2M
用地中部地铁4号线下穿,布局受限
用地性质:二类城镇住宅用地
用地面积:11382.01㎡
建筑密度:≤30%
建筑限高:80米
计容建筑面积:不小于11383㎡
且不大于17073㎡

场地视野情况
我们对现场各朝向,不同高度的视点进行了无人机拍摄,景观价值对于楼栋的布局有重要的影响。主要景观视野在西侧,24M以下受绿地植被遮挡严重,24M以上有较好的沙河及公园视野。

总图推导及规划方案


总图设计以“平衡主城低密属性与稀缺河景价值”为核心目标,历经多轮布局迭代:初始尝试5栋板式布局,因楼栋密度过高被否决;随后转向4栋板式,虽解决了部分视野问题,但先后因南北侧用地紧张、楼栋遮挡未能最大化河景资源;为强化“全端户”这一高端户型优势,设计又调整为3栋板式,分别测试了东西、西北、西南等朝向,虽实现了全端户与视野均好,但朝向未达南北向最优标准。
最终通过多轮优化回归4栋板式的点式错位布局,将楼栋高度控制在16-17层(保留低密感),调整楼栋夹角使每个户型均为全端户(270°环幕视野),并校准为偏南北向(兼顾采光与通风),达到”户户一线瞰河,百米景观视距”的目的,最终形成“全端户、视野均好、低密舒适”的最优解。

沿河透视
总图景观上,巧妙化解了临沙河地块的双向高差难题(南北1.8米陡坡、东西3.2米落差),通过 “梯级台地花园” 分级消化南侧陡坡。以 ≤5%坡度的“之”字形坡道衔接各层级,延长滨河动线。同步抬升起架空观景平台,破除防洪视野限制,实现户户瞰河。低洼区植入 雨水花园和卵石渗渠应对河岸倒灌,坡地采用深根系植物防治水土流失,最终在狭小地块内,将地形劣势转化为层次丰富的沉浸式滨河公园体验。




景观实景
示范区设计

通过AI工具快速迭代生成现代极简、自然生态、工业风等多版示范区建筑意向图,并基于成本可控性、施工可行性及项目核心价值匹配度三大维度综合评估。最终,“落于水边的飞船”意向方案脱颖而出——其流线型建筑形态天然呼应沙河的滨水特质,采用铝板+玻璃幕墙的现代材质组合,同时铝板材料的耐用性与成本稳定性符合项目预算要求。该方案完美平衡了“未来高端人居”的设计创意、“易实施”的施工条件及“性价比高”的成本控制,成为示范区建筑的最终意向方向。

最终选定意向图



效果图


实景图
建筑立面设计


超流体的金属线条,宛如锦江中流淌的水流。大面积的玻璃幕墙,将室内与环境无缝连接,带来360°的极致观景。
门头深化以阳极氧化铝板打造流线造型,结合曲面LOW-E玻璃幕墙形成悬浮舱体意象,入口嵌入磁悬浮发光标识系统强化科技感。内部星空顶采用了参数化设计,并赴现场进行把控,材料选用预制穿孔铝板基材,植入光纤灯矩阵,通过光影呼应“太空舱观河”主题,在成本可控前提下实现科幻场景落地。



143/173大户型产品立面全玻璃幕墙
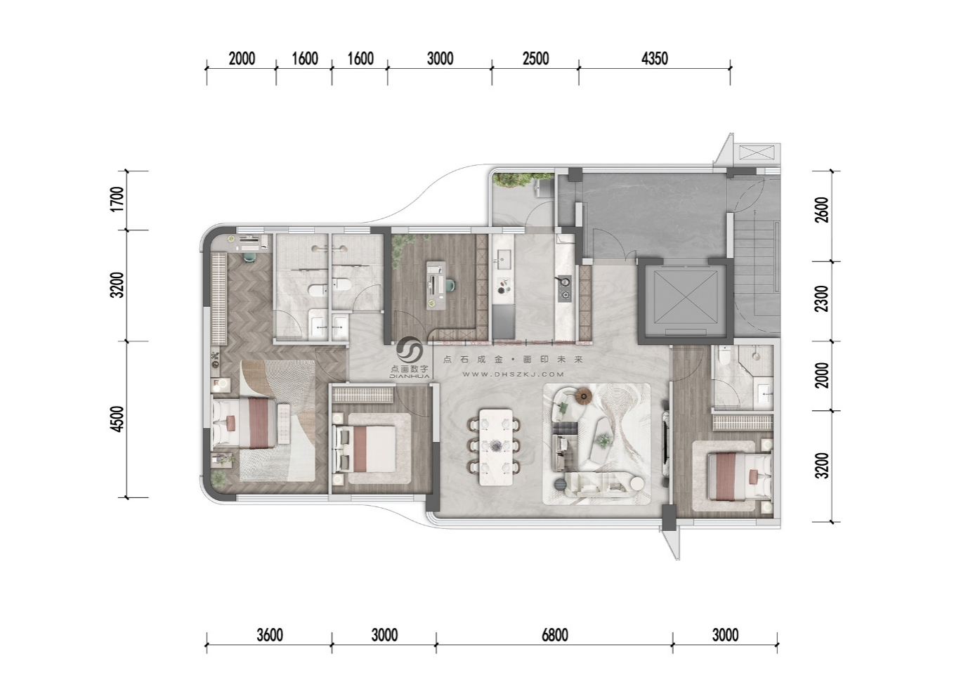
户型亮点
澳南户型选型-大面宽+太空舱。
在成都主流125㎡仅能实现常规三房的市场现状下,该项目通过太空舱式紧凑布局,首次实现 “小面积四房+双套房+三卫” 的顶配功能。
140㎡户型以“成都首个太空舱概念嵌入小面积豪宅”的创新设计,重新定义主城改善型人居标准——通过突破性的空间解构,在有限面积内植入“未来高端居住模块”。






项目名称:澳南.锦江序
地理位置:成都市成华区槐荫路
项目业主:澳南集团四川华筑卓越置业有限公司
设计单位:成都惟尚建筑设计有限公司
设计时间:2024
成都市高新区天府大道中段天府二街138号蜀都中心1号楼32、31层 网址:www.swi-arch.com